Dessin coordination


Préparation des plansd’exécution
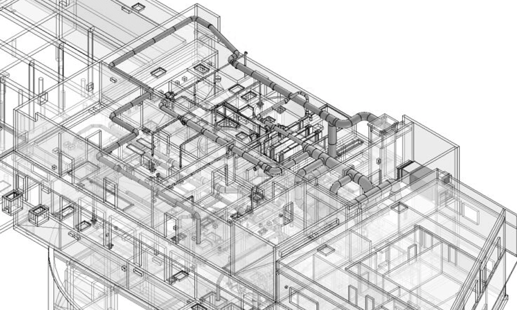
Notre service (VGR) est responsable de la planification et de la préparation des plans nécessaires à la réalisation de nos projets. Nous élaborons des plans d’exécution précis pour les travaux de ventilation et créons des dessins de fabrication pour l’installation sur les chantiers.
Coordination descorps de métiers
En analysant minutieusement les plans, schémas et devis, nous assurons une coordination efficace avec les différents corps de métier afin de minimiser les impacts sur le chantier. Notre service veille également à la mise en fabrication des composants, en respectant les codes en vigueur et les normes internes, tout en garantissant la qualité et la précision des plans.
Nos autres départementsde la division ventilation




